5005 South DriveFort Worth, TX 76132
Due to the health concerns created by Coronavirus we are offering personal 1-1 online video walkthough tours where possible.




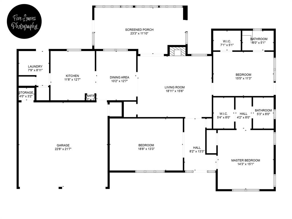
Warm Inviting Updated Home 3-2-2 with WBFP in convenient Fort Worth location; Large Bedroom with French Doors can be Office; Large Living Room with raised hearth WBFP has access to Huge outdoor enclosed Air Conditioned Porch for Game Room or Craft Room or Extra Living; Living flows to separate Dining Room off spacious Kitchen area! Massive backyard with any possibility; Home is landscaped in Tucson rock front and back with raised beds for specialized landscaping of your choice or needs! Secure with Lock and Leave features for travelers! ALL Furniture is available - purchased NEW in late July of 2025! Sofa is a double recliner!
| a week ago | Listing updated with changes from the MLS® | |
| 2 months ago | Listing first seen on site | 
 
© 2020 North Texas Real Estate Information Systems. All rights reserved. Information is deemed reliable but is not guaranteed accurate by the MLS or NTREIS. The information being provided is for the consumer's personal, non-commercial use, and may not be reproduced, redistributed, or used for any purpose other than to identify prospective properties consumers may be interested in purchasing.
Last checked: 2025-10-31 12:54 PM CDT
 
				 
			
Did you know? You can invite friends and family to your search. They can join your search, rate and discuss listings with you.